Daten werden geladen ...
WUPPERTAL
Mensaumbau und Erweiterung
Projekt
Auftraggeber GMW
Status
Realisiert
BGF
800 m²
Jahr
2023
LPH
1-8

Umbau der Mensa und Anbau an der Gesamtschule Langerfeld

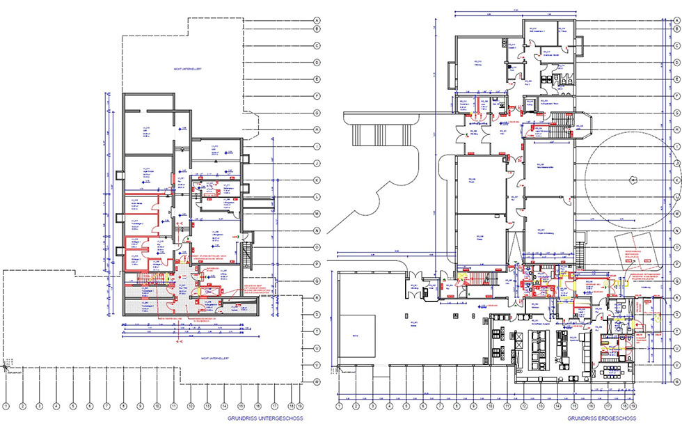
Im Rahmen des geplanten Mensaumbaus wurden Sozial- und Lagerräume, sowie ein Windfang für den Mitarbeitereingang und der Anlieferung zur Mensa ergänzt.

Eine Sanierung der gesamten Fassade ist in Planung und wird als nächstes vom Gebäudemanagement Wuppertal (GMW) angestrebt.

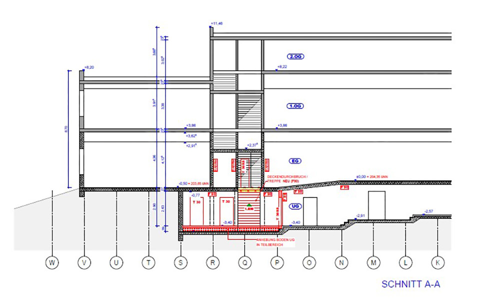
Im Zuge des Umbaus wurden Maßnahmen zur Einhaltung und Optimierung der geltenden Arbeitsschutzvorgaben umgesetzt.

Hierzu zählt insbesondere der Einbau eines Aufzuges und ein neues Rettungswege-Konzept für die Einbindung des Untergeschosses in den Mensaküchenbereich.

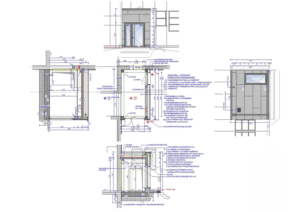
Umbau der Mensa und Anbau an der Gesamtschule Langerfeld, Wuppertal I 2023
Darüber hinaus erfolgte eine grundlegende Sanierung der Mensa, bei der funktionale Abläufe, hygienisch Anforderungen sowie ergonomische Aspekte des Arbeitsschutzes berücksichtigt wurden.

Ein besonderer Schwerpunkt der Maßnahme lag in den umfassenden Umbauarbeiten der Fettabscheideanlage.

Umbau der Mensa und Anbau an der Gesamtschule Langerfeld, Wuppertal I 2023
Umbau der Mensa und Anbau an der Gesamtschule Langerfeld, Wuppertal I 2023
Umbau der Mensa und Anbau an der Gesamtschule Langerfeld, Wuppertal I 2023
Umbau der Mensa und Anbau an der Gesamtschule Langerfeld, Wuppertal I 2023
Umbau der Mensa und Anbau an der Gesamtschule Langerfeld, Wuppertal I 2023
Umbau der Mensa und Anbau an der Gesamtschule Langerfeld, Wuppertal I 2023
Umbau der Mensa und Anbau an der Gesamtschule Langerfeld, Wuppertal I 2023
Umbau der Mensa und Anbau an der Gesamtschule Langerfeld, Wuppertal I 2023
Umbau der Mensa und Anbau an der Gesamtschule Langerfeld, Wuppertal I 2023